Používame cookies

Súbory cookie a ďalšie technológie sledovania používame na zlepšenie vášho zážitku z prehliadania našich webových stránok, na to, aby sme vám zobrazovali prispôsobený obsah a cielené reklamy, na analýzu návštevnosti našich webových stránok a na pochopenie toho, odkiaľ naši návštevníci prichádzajú. Viac info

REZERVOVANÉ!!! ZREKONŠTRUOVANÝ 1I BYT S VEĽKOU LOGGIOU PRI LÍŠČOM ÚDOLÍ

  • Exkluzívna ponuka

Popis nehnuteľnosti

Zdieľať na Facebooku

Realitná kancelária MIRACLE REAL, s.r.o. Vám v exkluzívnom zastúpení majiteľa ponúka na predaj krásny, zrekonštruovaný 1 izbový byt s veľkou zasklenou loggiou a nádherným výhľadom vo vyhľadávanej lokalite, kúsok od Líščieho údolia, na Donnerovej ulici v Karlovej Vsi.


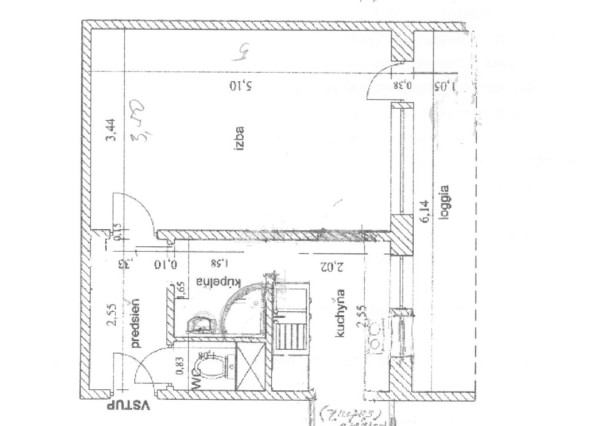
Dispozícia bytu: Byt sa nachádza na 7. poschodí zo 7 v zateplenom bytovom dome s výťahom. Podlahová plocha bytu je 31,28 m2 + k bytu prislúcha veľká loggia 7 m2. Loggia je murovaná, zasklená fínskym systémom a s vonkajšími roletami. Dispozične je byt riešený vstupnou chodbou, priestrannou izbou (5 x 3,5 m) s vstupom na loggiu, samostatnou kuchyňou s peknou kuchynskou linkou s dostatkom úložného priestoru a jedálenským kútom. Z kuchyne sa vchádza do komory (1,5 x 1,2 m) s okienkom a úložným priestorom, kde sa nachádza práčka a chladnička. Kúpeľňa je priechodná do kuchyne z chodby, je v nej sprchový kút. WC je samostatné. Z bytu je príjemný výhľad na okolie, na Dlhé Diely a Karlovu Ves. Byt je slnečný, orientovaný na západ, pričom v lete dobre poslúžia vonkajšie rolety na loggii, vďaka ktorým je v byte horúcich dňoch chladnejšie. V byte je tiež namontovaná klimatizácia. Byt pôsobí veľmi príjemne a vkusne. Byt sa predáva v prípade záujmu vrátane zariadenia. Stačí sa len nasťahovať.

Je vhodný aj ako investícia na prenájom. Rýchlo a ľahko sa prenajíma.


Technické špecifikácie: Byt prešiel staršou kompletnou rekonštrukciou. V byte boli menené elektrické rozvody, podlahy, plastové okná, rekonštrukcia kúpeľne, WC, komory. Loggia zasklená fínskym systémom, montáž vonkajších roliet v r. 2016. Kuchynská linka so sklokeramickou dvojplatničkou. Mesačné náklady na bývanie sú 120 Eur pre 1 osobu + elektrina (cca. 10 Eur). Bytový dom, v ktorom sa byt nachádza bol zateplený v r. 2015, zrekonštruovaná aj nová strecha s izoláciou, rekonštrukcia loggie, nové stupačky, nový výťah.


Okolie a vybavenosť: Ponúkaný byt sa nachádza vo výbornej lokalite s kompletnou občianskou vybavenosťou v okolí (potraviny, mäsiarstvo, Námestie sv. Františka 2 min. pešo, reštaurácie, kaviarne, zastávka električiek, bankomaty, pošta, OD Centrum a pod.). V blízkosti sa tiež nachádza lesopark Líščie údolie s možnosťou prechádzok a turistiky. Dostupnosť do centra je veľmi dobrá autom aj MHD (cca. 15 minút).

Celková cena nehnuteľnosti je 169.990 €.

Cena je vrátane kompletného právneho servisu a hypotekárneho poradenstva.

V prípade záujmu kontaktujte:

MIRACLE REAL s.r.o.                                                                                                                         

Mgr. Klaudia Villemová
Certifikovaný realitný poradca
tel. kontakt: 0948 773 343
E-mail: villemovak@gmail.com

www.miraclereal.sk

Vlastnosti

Status:
aktívne
Vlastníctvo:
osobné
Úžitková plocha:
38.28 m2
Zastavaná plocha:
38.28 m2
Podlahová plocha:
31.28 m2
Stav:
úplne prerobený
Loggia:
áno
Verejné vonkajšie parkovanie:
áno
Výťah:
áno
Pozícia:
posledné poschodie
Celková plocha:
38.28 m2
Plocha loggie:
7 m2
Počet logií:
1
Inžinierske siete:
áno
Voda:
áno
Elektrika:
áno
Kanalizácia:
áno
Internet:
áno
Káblová TV:
áno
Optická sieť:
áno

Hypotekárna kalkulačka

169 990 €
Ulica: Donnerova
Obec: Bratislava-Karlova Ves
Okres: Bratislava IV
Kraj: Bratislavský kraj
Druh: Byty
Typ: Predaj
Typ bytu: 1-izbový byt
Iné:

Mgr. Klaudia Villemová

  • Česky
  • Slovensky
  • English
  • Magyar

Radi Vám poradíme